DMU104系列:
    
适用范围:

◇ 介质:弱酸、弱碱、油水  
◇ 压力:0~0.7 MPa
◇ 温度:-45~200 ℃    
 转速:3000r/min



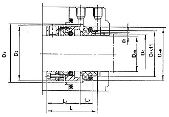
d d1 D D0 D1 D2 D3 L L1 L2
15 3 33 21 25 33 26 52 36 12
20 3 40 25 30 37 40 59 40 14
25 3 45 30 35 42 45 62 43 14
28 3 48 33 38 45 48 63 44 14
30 3 50 35 40 52 55 68 49 14
35 3 55 40 45 57 60 70 1 14
40 3 60 45 50 62 65 73 54 14
45 3 65 50 55 67 70 79 60 14
50 3 70 55 60 72 75 82 63 14
55 3 75 60 65 77 80 84 65 14
60 3 80 65 70 82 85 84 65 14
65 3 90 73 80 92 95 96 74 17
70 3 97 78 85 97 100 101 76 19
75 3 102 83 90 102 105 101 76 19
80 3 107 88 95 107 110 106 81 19
85 3 112 93 100 112 115 107 82 19
90 3 117 98 105 117 120 108 83 19
95 3 122 103 110 122 125 108 83 19
100 3 127 108 115 127 130 108 83 19
110 3 142 120 130 141 145 132 105 21
120 3 152 130 140 151 155 132 105 21
 

温州市东盛机械密封件厂 版权所有
电话:0577-86822589 传真:0577-86833589 E-mail:info@sealcn.com