DM102系列:
    102型机械密封是一中内流内装、单端面、多弹簧非平衡型结构,符合ISO-3069、 JB1472-75标准。应用于各种离心泵、化工泵、管道泵及管道增压泵、排污泵、多级给水泵。
    本系列机械密封中型圈分丁腈橡胶、氟橡胶两种,请用户在选用时注意。
    如果使用介质的腐蚀性较强,则应改型圈为聚四氟乙烯V型圈。用户在订货时必须注意。
    本系列为提高水泵产品的三化程序,谨向用户推荐优先选择使用。


适用范围:
◇ 密封 介质:水、油、弱酸、弱碱等一般腐蚀性介质
◇ 密封压力:≤1.0 MPa
◇ 密封腔温度:
  丁腈橡胶:-20~180℃
  氟橡胶:-20~180℃
  聚四氟乙烯V型圈:-80~250℃
 转速:轴径≤φ45 :       ≤3000 转/分
     轴径 >φ45 :       ≤1450 转/分


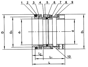
1、静环型圈 2、静环座 3、静环 4、动环 5、动环座 6、动环型圈
7、传动座 8、连接螺钉 9、弹簧座 10、弹簧

型号 d d1 D D1 D2 L L1 L2
102-25 25 26.5 40 40 34 45 38 19
102-28 28 29.5 43 43 37 45 38 19
102-30 30 31.5 45 45 39 45 38 19
102-35 35 36.5 50 50 44 50 43 20
102-40 40 41.5 58 56 52 55 48 20
102-45 45 46.5 63 62 56 57 50 20
102-50 50 51.5 70 69 62 60 53 22
102-55 55 56.5 75 74 67 60 53 22
102-60 60 61.5 80 79 72 60 53 22
102-65 65 66.5 85 84 77 62 57 23
102-70 70 71.5 92 91 83 62 57 23
102-75 75 76.5 97 96 88 65 63 25
102-80 80 81.5 105 104 95 65 63 25
102-85 85 86.5 110 109 100 65 63 25
 

温州市东盛机械密封件厂 版权所有
电话:0577-86822589 传真:0577-86833589 E-mail:info@sealcn.com